zurück zur Übersicht
Raum für Kreativität…
Veranstaltungsraum
EG 5-8
Unsere hellen und freundlichen Räume EG 5-8 im Erdgeschoss bieten neben modernster Technik eine Vielzahl an Kombinationsmöglichkeiten für Ihre Tagung, Sitzung oder Workshop.
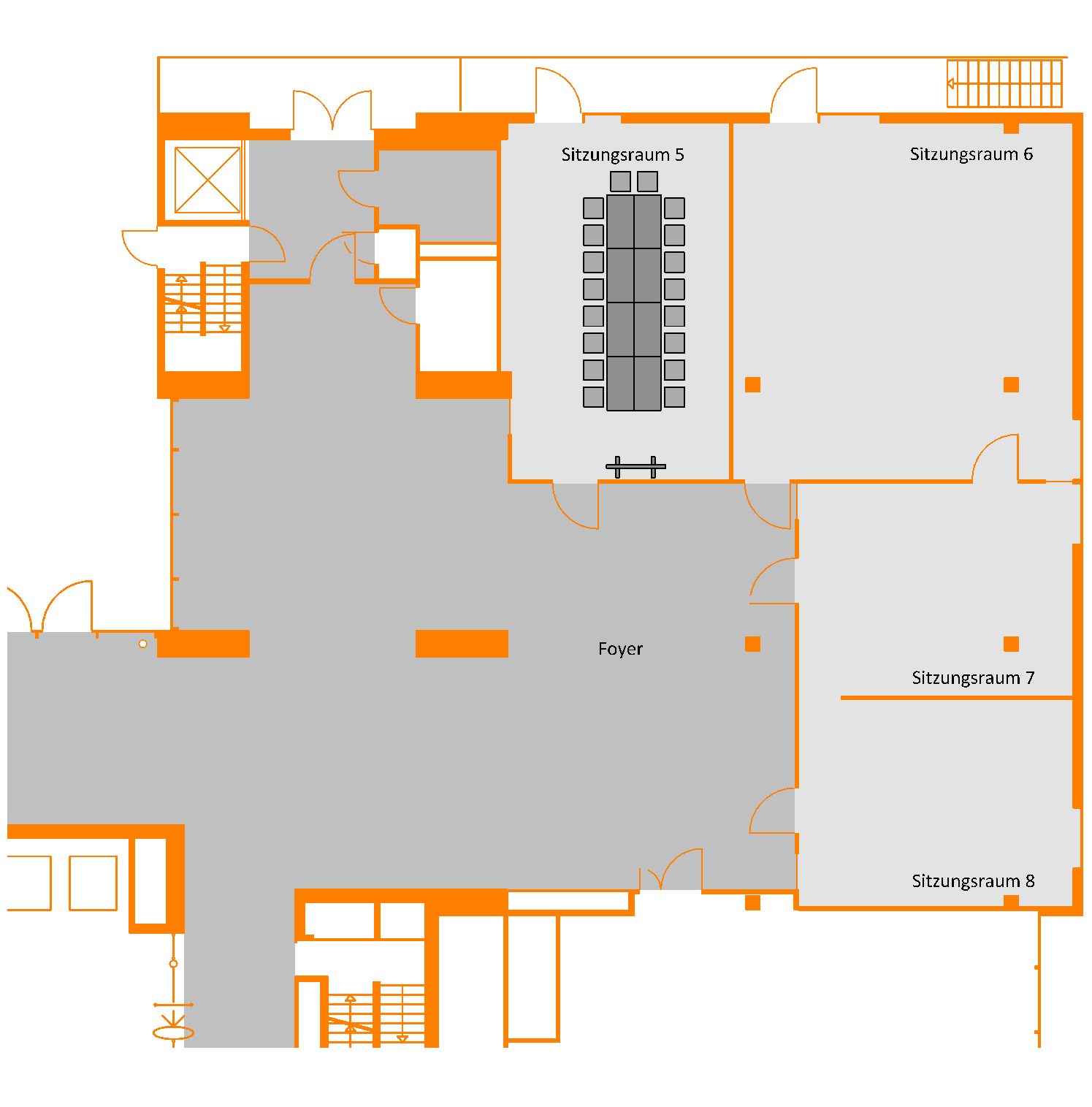
Das großzügige Foyer lädt für Networking und Kulinarik ein.
Galerie Veranstaltungsraum EG 5-8
Die Veranstaltungsräume in der Übersicht
EG Raum 5
EG Raum 6
EG Raum 7
EG Raum 8
EG Raum 5-6
EG Raum 7-8

Raumgröße in Quadratmeter
Raumgröße in Quadratmeter
63
94
46
44
157
90

Raumhöhe in Meter
Raumhöhe in Meter
3,2
3,2
3,2
3,2
3,2
3,2

Maximale Personenanzahl in Reihenbestuhlung
Maximale Personenanzahl in Reihenbestuhlung
48
62
-
-
105
56

Maximale Personenanzahl in parlamentarischer Bestuhlung
Maximale Personenanzahl in parlamentarischer Bestuhlung
-
-
-
-
38
24

Maximale Personenanzahl in Konferenzbestuhlung
Maximale Personenanzahl in Konferenzbestuhlung
18
26
12
12
32
26

Personenanzahl in U-Form Bestuhlung
Personenanzahl in U-Form Bestuhlung
-
20
-
-
30
24
Bestuhlungsvarianten der Veranstaltungsräume
Variante A:
U-Form
Variante B:
Parlamentarisch
Variante C:
Reihenbestuhlung
Variante D:
Konferenz
Downloads
Bestuhlungsvarianten EG 5-8
Hier finden Sie weitere Bestuhlungsvarianten für unsere Veranstaltungsräume EG 5-8
(PDF – 327 kB)
Übersicht Veranstaltungsraum EG mit Foyer
Hier finden Sie eine Übersicht unserer Veranstaltungsräume im Erdgeschoss mit Foyer
(PDF – 672 kB)
Catering
Anfahrt
Hotels
Interessiert?
Gerne nehmen wir Ihre Buchungsanfrage an.
Wir freuen uns auf Sie.





