zurück zur Übersicht
Für den kleinen Kreis…
Veranstaltungsraum
Gästecasino
Ob für Meetings oder Geschäftsessen in angenehmer Atmosphäre stehen Ihnen unsere Casinoräume zur Verfügung.
Der Veranstaltungsraum in der Übersicht
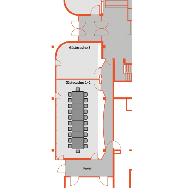
Gästecasino 1
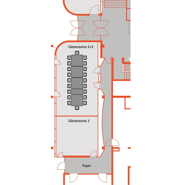
Gästecasino 2
Gästecasino 3
Gästecasino 1+2
Gästecasino 2+3
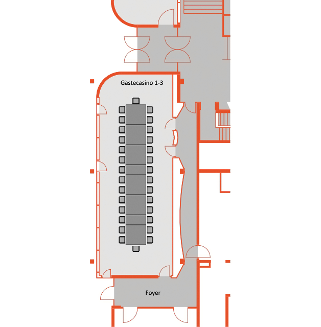
Gästecasino 1-3

Raumgröße in Quadratmeter
Raumgröße in Quadratmeter
33
32
30
65
62
95

Raumhöhe in Meter
Raumhöhe in Meter
2,6
2,6
2,6
2,6
2,6
2,6

Maximale Personenanzahl in Reihenbestuhlung
Maximale Personenanzahl in Reihenbestuhlung
-
-
-
-
-
-

Maximale Personenanzahl in parlamentarischer Bestuhlung
Maximale Personenanzahl in parlamentarischer Bestuhlung
-
-
-
-
-
-

Maximale Personenanzahl in Konferenzbestuhlung
Maximale Personenanzahl in Konferenzbestuhlung
10
10
8
22
20
30

Personenanzahl in U-Form Bestuhlung
Personenanzahl in U-Form Bestuhlung
-
-
-
-
-
-
Bestuhlungsvarianten der Veranstaltungsräume
Variante A:
Konferenz
Variante B:
Konferenz
Variante C:
Konferenz
Variante D:
Konferenz
Download
Bestuhlungsvarianten Gästecasino 1-3
Hier finden Sie eine Übersicht der Bestuhlungsvarianten für unsere Casinoräume 1-3
(PDF – 155 kB)
Catering
Anfahrt
Hotels
Interessiert?
Gerne nehmen wir Ihre Buchungsanfrage an.
Wir freuen uns auf Sie.





