zurück zur Übersicht
Repräsentativ und flexibel…
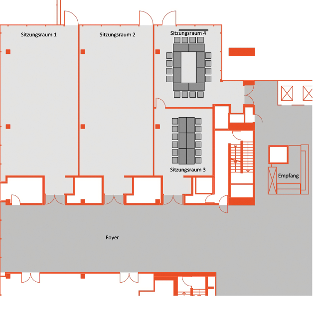
Veranstaltungsraum
EG 1-4
Unsere lichtdurchfluteten Veranstaltungsräume im Erdgeschoss lassen sich individuell für Tagungen, Kongresse, Seminare oder Workshops gestalten.
Runden Sie Ihre Veranstaltung mit einem Stehempfang oder Buffet im Foyer ab.
Die Veranstaltungsräume in der Übersicht
EG Raum 1
EG Raum 2
EG Raum 3
EG Raum 4
EG Raum 1-2
EG Raum 2-4
EG Raum 3-4
EG Raum 1-4

Raumgröße in Quadratmeter
Raumgröße in Quadratmeter
108
107
42
55
215
204
97
312

Raumhöhe in Meter
Raumhöhe in Meter
3,2
3,2
3,2
3,2
3,2
3,2
3,2
3,2

Maximale Personenanzahl in Reihenbestuhlung
Maximale Personenanzahl in Reihenbestuhlung
72
72
30
30
175
173
54
280

Maximale Personenanzahl in parlamentarischer Bestuhlung
Maximale Personenanzahl in parlamentarischer Bestuhlung
34
30
-
-
80
68
24
118

Maximale Personenanzahl in Konferenzbestuhlung
Maximale Personenanzahl in Konferenzbestuhlung
32
32
12
16
-
-
-
-

Personenanzahl in U-Form Bestuhlung
Personenanzahl in U-Form Bestuhlung
28
28
-
-
-
-
28
-
Bestuhlungsvarianten der Veranstaltungsräume
Variante A:
U-Form
Variante B:
Parlamentarisch
Variante C:
Reihenbestuhlung
Variante D:
Konferenz
Downloads
Bestuhlungsvarianten EG 1-4
Hier finden Sie weitere Bestuhlungsvarianten für unsere Veranstaltungsräume EG 1-4
(PDF – 705 kB)
Übersicht Veranstaltungsräume EG mit Foyer
Hier finden Sie eine Übersicht unserer Veranstaltungsräume im Erdgeschoss mit Foyer
(PDF – 672 kB)
Catering
Anfahrt
Hotels
Interessiert?
Gerne nehmen wir Ihre Buchungsanfrage an.
Wir freuen uns auf Sie.





